El programa brasileño Minha Casa, Minha Vida no solo define quién accede a una vivienda, sino también cómo se diseña y construye. En un contexto de suelo caro y alquileres imposibles en toda Sudamérica, sus modelos vuelven a poner en agenda una pregunta clave: cómo vivir bien en pocos metros cuadrados.

Lejos de soluciones improvisadas, el programa fija estándares mínimos de habitabilidad, materiales y distribución. Cada metro está pensado para cumplir una función concreta. Joāo Filgueiras Lima (1931-2014), apodado Lelé, fue el arquitecto brasileño destacado en arquitectura social y técnicas constructivas innovadoras.
Su participación en proyectos de Minha Casa, Minha Vida reflejó su compromiso con soluciones accesibles y de bajo costo para familias vulnerables, más allá de la simple estandarización funcional. La política social funcionó con múltiples estudios, empresas constructoras y equipos técnicos, porque se trata de un programa masivo implementado por el Estado con diferentes contratistas. Pero el aporte de Lelé aparece en obras concretas dentro del propio MCMV, destacándose históricamente por su vocación social y técnica.

Dos modelos base: casa y departamento
El plan trabaja con tipologías estandarizadas, diseñadas para reducir costos sin resignar condiciones básicas de vida.
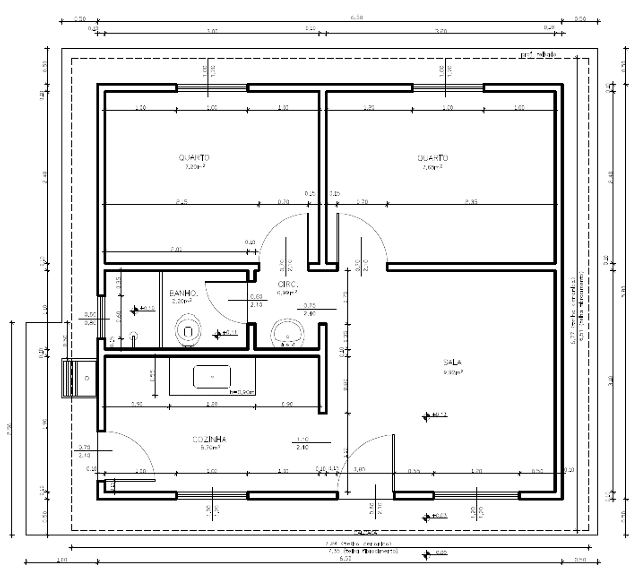
🏠 Casa térrea – 35 m²
Es el modelo más difundido en zonas urbanas y periurbanas. La superficie interior ronda los 32 m². No hay pasillos largos ni ambientes sobrantes. Las dimensiones están pensadas para mobiliario mínimo y circulación eficiente. El techo alto favorece ventilación y confort térmico.
Ambientes:
Sala de estar, cocina, baño, 2 dormitorios y área exterior con lavadero.
Vereda perimetral: 0,50 m alrededor de la construcción.
Superficie total de la unidad: 35 m²
Superficie interior: 32 m²
Dimensiones de los ambientes: compatibles con mobiliario mínimo.
Altura libre (cielorraso): 2,20 m en cocina y baño; 2,50 m en los demás ambientes.
Instalaciones sanitarias: cantidad de puntos definida, con medidores independientes.
Instalaciones eléctricas: cantidad de puntos definida, con especificación mínima de materiales.
Sistema solar/térmico: instalación de kit completo.

Pisos: cerámicos en cocina y baño; cemento alisado en el resto de los ambientes.
Revestimiento de muros: azulejos hasta 1,50 m de altura en paredes húmedas y box de baño. Revoque interno y externo con pintura PVA en el resto.
Cielorraso: losa de hormigón o cielorraso de madera o PVC.
Cubierta: techo de tejas cerámicas.
Aberturas: ventanas de hierro o aluminio y puertas de madera.
🏢 Departamento – 42 m²
Diseñado para edificios de hasta cuatro o cinco pisos, este modelo apunta a mayor densidad urbana. La superficie interna es de 37 m². La clave está en la integración de ambientes y la reducción de espacios muertos.
Edificio: 4 pisos, con 16 departamentos por bloque.
Opción: hasta 5 pisos y 20 departamentos por bloque.
Superficie total de la unidad: 42 m²
Superficie interior: 37 m²

Pisos: cerámicos en cocina y baño; cemento alisado en el resto de los ambientes.
Revestimiento de muros: azulejos hasta 1,50 m de altura en paredes húmedas y box de baño. Revoque interno y externo con pintura PVA en el resto.
Cielorraso: losa de hormigón.
Cubierta: techo de fibrocemento.
Aberturas: ventanas de hierro o aluminio y puertas de madera.
Dimensiones de los ambientes: compatibles con mobiliario mínimo.
Altura libre (cielorraso): 2,20 m en cocina y baño; 2,40 m en el resto de los ambientes.
Instalaciones sanitarias: cantidad de puntos definida, con medidores independientes.
Instalaciones eléctricas: cantidad de puntos definida, con especificación mínima de materiales.
Sistema solar/térmico: instalación de kit completo.
Vereda perimetral: 0,50 m alrededor de la construcción.
Materiales simples, durables
Las viviendas no son de lujo, pero cumplen criterios técnicos claros:
- Pisos cerámicos en cocina y baño
- Muros revocados y pintados
- Estructura de hormigón
- Techos de teja o fibrocemento
- Instalaciones eléctricas e hidráulicas completas
En muchos casos se incorpora calentamiento solar de agua, una decisión que reduce consumo energético y gastos mensuales.
Croquis que valen oro
Los croquis oficiales del programa muestran algo fundamental para quienes hoy están pensando cómo hacer su casa o departamento en pocos metros:
- Dormitorios compactos pero funcionales
- Cocinas integradas
- Baños bien resueltos
- Espacios comunes sin desperdicio
No son planos pensados solo para Brasil. Son modelos replicables para cooperativas, autoconstrucción, proyectos comunitarios o incluso viviendas familiares ajustadas al bolsillo.
Pensar la vivienda desde el diseño
Minha Casa, Minha Vida deja una enseñanza concreta: la política habitacional también se define en el plano. En la orientación de una ventana, en la altura del techo, en cómo se conectan los ambientes.
En tiempos donde el acceso a la vivienda se vuelve cada vez más restrictivo, estos diseños muestran que una casa chica puede ser una casa digna, si está bien pensada.
Compartir estos modelos no es solo mirar cómo vive una familia beneficiaria del programa. Es abrir el debate sobre cómo queremos habitar nuestras ciudades y qué lugar le damos al derecho a la vivienda en Sudamérica.